診断結果から各棟建物の「所定強度不足箇所」を発見
前回の続きである。
2.耐震診断の結果
耐震診断は、6棟すべての棟について実施した。各棟は廊下等でエキスパンジョイントで接続されている。コンクリート強度は、部分的に下回る場所があったがほとんどが設計基準強度以上で平均としては設計基準程度であった。ひび割れは、経年数に対して通常程度で、有害となるひび割れはなかった。不同沈下も見られなかった。既存の竣工図との照合が行われ、これらを基に耐震診断が行われた。
耐震診断の結果は、6棟とも部分的に現状の耐震基準に満たない場所があり、主要な部分に対する安全性は「地震の震動および衝撃に対して倒壊し、または崩壊する危険性が高い」との判定となり、具体的には次のような範囲、内容の耐震改修が必要となった。
(1)各棟建物の所定強度不足箇所
●けた行き方向強度不足箇所
けた行き方向は、旧基準では適合していたが、新基準ではバルコニーや廊下に開口部が多く耐力となる壁が少ないため地震の揺れに対して強度が不足している。けた行き方向の補強をする必要がある。
●A棟・C棟塔屋の強度不足箇所
A棟とC棟に塔屋があり高架水槽が設けられている。階高が高く荷重が重いため強度不足となった。鉄筋コンクリート壁の設置、ブレースの設置などの補強が必要となる。
●B棟D棟の1階梁間方向の壁抜け箇所の強度不足
B棟D棟の1階で店舗利用、集会室利用のため梁間方向耐震壁が設けられていない箇所があり強度不足となった。梁間方向RC壁の増設、柱の補強が必要となる。
(2)その他 地震時避難上問題箇所について
●地震によるA棟渡り廊下の落下の危険性
A棟は、2棟で構成されており棟間に渡り廊下が設けられており避難の際に必要となる通路である。この渡り廊下が地震の揺れにより落下する恐れがある。柱の設置など落下防止対策が必要である。
●各棟らせん階段が転倒する危険性
A、B、C、E棟にらせん階段が設置されており避難の際に利用する重要な階段である。この階段が地震時転倒する恐れがある。転倒防止のため補強対策が必要である。
耐震補強壁の設置、柱の補強などを実施
3.部分耐震補強工事の内容
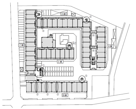
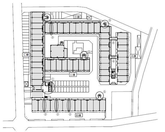
以上のような耐震診断の結果を受けて、次のような部分的な耐震補強工事がなされた(図1)。
【図1】耐震補強の工事箇所(①から⑤)

●A棟C棟の塔屋階、耐震補強壁の設置
高置水槽のある塔屋については、地震時の横揺れで折れて住戸屋根に被さる恐れがあるため、耐力壁の増設と、鉄骨ブレースを受ける梁を大きくしてフレームの補強を行った(写真1)。
【写真1】塔屋階の鉄骨ブレース設置

●B棟1F耐震補強壁の設置
B棟1階店舗部分については、区画の間の境界壁がコンクリートブロックでつくられている3区画について柱間に耐力壁を新設する工事を行った。店舗や倉庫、書庫など、使用状況はさまざまであったが、各区分所有者と相談を重ねた結果、既存ブロックを撤去し新たに耐震壁を設置する方法と、営業中の店舗を考慮して既存ブロックの前に耐震壁を設置する2つの方法を採用した。店舗内部の機器の移動が必要であったり、休業にしてもらって工事をしたりで、区分所有者の協力が欠かせなかった(写真2)。
【写真2】耐震壁工事中

【写真3】耐震壁設置完了

●D棟集会室柱の補強
D棟1階集会室は、柱間に耐力壁がなく柱が座屈する恐れがあるが、集会室の真ん中に耐震壁を設置することはできず、柱の補強をすることにした。同じ柱の補強でも、部屋をなるべく狭くしないように鋼板を巻きつける方法と、柱をコンクリートで大きくする方法の2つを併用した(写真4、写真5)。
【写真4、5】左写真:柱コンクリート補強工事中、右写真:柱コンクリート補強完了

●A棟渡り廊下落下防止策
A棟の渡り廊下は廊下側の梁の上に、渡り廊下側の床を載せる形になっているため、地震の揺れによって棟間隔が広がり、外れて落下する恐れがあるため、柱を立てて落下防止策とした(写真6、写真7)。
【写真6】補強前の渡り廊下

【写真7】補強後の渡り廊下

●らせん階段転倒防止対策
唯一の縦の避難経路となるらせん階段は、一本の柱で建てられており、地震の際に転倒する恐れがある。鉄骨でらせん階段の支柱と建物の梁をつないで転倒を防ぐこととした(図2)。
【図2】らせん階段の補強

4.これからの取組み
大規模改修工事以上に一部の居住者に負担を強いる工事だったにも関わらず、大きな問題もなくおよそ5か月間の工事期間を経て予定した補強工事を完了することができた。
今回の工事で、従来よりもマンションの耐震性が高まり、安全な避難通路の確保もできたが、けた行き方向で耐震性の低い部分の補強がまだ残されている。この部分の耐震補強工事の手法の検討、公的な補助策や工事費の借り入れなどの検討を進め、より安全な建物に改修する次のステップへの準備を進めている。
