ゴールドオンライン新書最新刊、Amazonにて好評発売中!
世界の税金はどうなっているのか 富裕層の相続戦略シリーズ【国内編】
矢内一好(著)+ゴールドオンライン(編集)
シリーズ既刊本も好評発売中 → 紹介ページはコチラ!
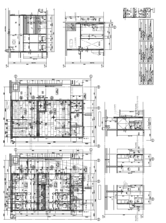
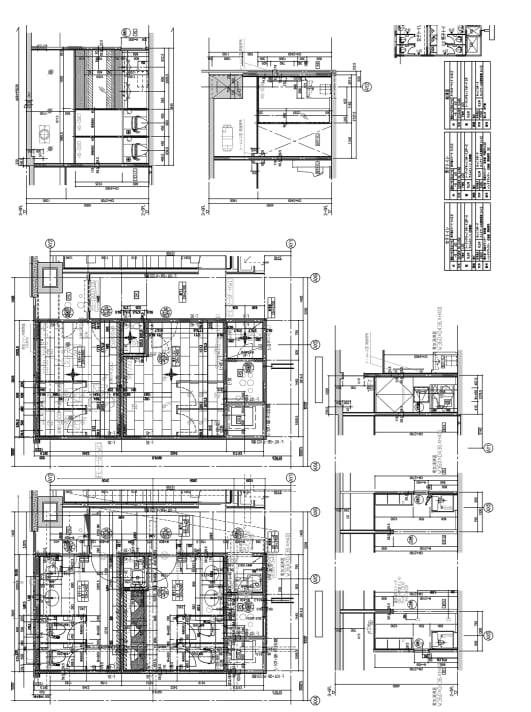
施工図は工事のための詳細図面
設計図は設計者がどのような建物を建てたいと考えているのか、その構想を示すもので、平面図や東西南北それぞれの面から外観を描いた立面図、建物をある場所で垂直に切って示した断面図、さらに躯体がどのように組まれるのかを示す構造図などがあります。また、これらの図面以外にも、建物の開口部や室内に設けるドアの種類や形をまとめた建具表、内外装に使う仕上げ材料を一覧にした仕上げ表などがあり、総称して「設計図書」と呼ばれます。どういう建築物をつくるのか、つまり「何を(WHAT)」ということを具体的に示します。
これに対して施工図はつくり方を示す図面であり、建築物の「いかに(HOW)」を示すものです。構想された建物を実際にどのようにして建てるのか、その詳細を手順とともに工事の担い手である施工者に伝えることが目的です。言い換えれば設計図書は建物の「ありよう」を示すもの、施工図は建物の「なりよう」を示すものともいえます。
この設計図と施工図の違いは法律上の扱いにも表れています。
建築物を建てるためには、それがどういう建物であるかということを事前に専門の審査機関に示し、「確かにこの建物は建築関連法規に則っているので建ててもよい」という「建築確認済証」をもらうことが必要です。この審査を受けるために提出が義務づけられた書類は膨大な種類と量に上りますが、そのなかに施工図は含まれていません。確認を得る必要があるのは「何を建てるか」であり、「どのようにして建てるのか」は問題ではないからです。施工図はあくまでも工事用に特化した詳細図面であり、作成や審査を受けることが法律上で義務づけられたものではありません。
施工図にはどのようなものがあるか
建築物は単なる箱ではなく、さまざまな機能を備えた複雑なものです。コンクリートの基礎があり、その上にフレーム(骨組み)が組まれ、そこに床や壁、サッシが取り付けられ、さらに天井裏や床下、壁の中には、さまざまなダクトや配管、配線が通り、断熱材がセットされ、照明器具も取り付けられて、仕上げ材で覆われます。
さまざまな会社の工場でつくられた膨大な部材や設備機器類が運び込まれ、それらが精密に一つに組み上げられて初めて完成します。設計図書はこの組み上げ方については触れません。設計図書と聞くとあたかもすべてを網羅しているように思いますが、そこまでの情報はないのです。
例えば壁と床が接するところがあります。床の上に壁が載るのか、壁と壁の間に床が挟まるのか、壁が載る場合、床を挟んだ壁の下はどのようになるのか、といった詳細は、設計図書には記載がありません。また、どういう手順で施工するのか、順番も不明です。設計図書で分かるのは、つくりたいものがどういうものかという大きな見取り図と使用する材料にすぎません。
その一方で、施工図は不足している情報を補い、具体的な施工方法や施工手順を詳細な図面として表現するものです。これがあることで初めて、現場で施工に当たる職人は何をどういう順番でどのように組み上げていけばよいかが分かります。施工図には下記の表のようなものがあります。これらがそろうことで実際の建築工事が動き始めます。




