まれに「嫌悪施設」の存在を気にしない人がいる
「ワケあり物件」には、それぞれ不人気になる「ワケ」があり、それらは一様なものではありません。ですから、ここでそれぞれの「ワケ」について細かに対処方法を記すことはできないのですが、おおざっぱにいえば、その「ワケ」を気にしない相手に売却することが最も簡単な解決策になります。
たとえば、嫌悪施設がそばにある物件の場合、その嫌悪施設に移転してもらうことはまず不可能です。基本的には、我慢をするしかありません。
しかし、買い手の中には、ときどきその嫌悪施設の存在を何ら気にしないという人がいらっしゃいます。もっとまれな例でいえば、むしろその嫌悪施設がそばにあったほうが嬉しいという人もいます。
(画像はイメージです…PIXTA)
事業用地として売るなど「ワケ」に合わせた工夫をする
具体的な例をあげてみましょう。
以前、筆者が仲介した物件は、埼玉県の郊外にある600坪くらいの土地で、それまでは駐車場として使われていました。所有者の人が、現金が必要になって「売却したい」と相談がありました。場所は郊外の住宅地です。
一般的な戸建て住宅の広さは40~50坪ですから、600坪というのはかなり広い土地になります。この広さであれば、デベロッパーにマンション用地として売ることもできますし、分譲住宅地として買ってもらうこともできるでしょう。
しかし、この物件には一つ問題がありました。なんと通りを挟んで向かい側が、指定暴力団の組長の自宅だったのです。組長の自宅といっても、事務所とは違ってプライベートな生活の場ですから、何がどうというわけでもないのですが、一般の方はやはり気にするでしょう。あまりにも目の前の邸宅の存在感が大きすぎるために、普通の人向けの住宅地としては売りづらいと感じました。
そこで筆者が考えたのが、事業用地として売ることです。ビジネスの場所であれば、目の前にちょっと変わったお屋敷があったところで気にしない人は気にしないでしょうし、大きさ的にもちょうどよさそうです。
また、住宅にすると10世帯以上の入居者を探さなければなりませんが、店舗や商業ビルとして売るのであればテナントの数は少なくてすみます。ワケあり物件には最適です。結局、この物件はとある物流会社が買ってくれました。
このように「ワケあり物件」の場合は、その「ワケ」が気にならないお客様を探して売却することが有効です。
たとえば、お墓の隣の家はなかなか買ってくれる人がいませんが、幽霊などをまったく怖がらない人もなかにはいて、眺望が開けていて気持ちがいいと言って買ってくれたことがありました。それぞれの物件に合ったお客様を探すことは時間がかかって大変なのですが、根気よく探せば必ず見つかります。
「リフォーム」で嫌悪感を打ち消す
嫌悪施設近くの物件は、その嫌悪施設が気にならないというお客様を探して売却するのが基本です。
とはいえ、そんなお客様が運よく見つかるとも限りませんから、リフォームによって嫌悪施設への嫌悪感を打ち消すようにすることも忘れてはなりません。
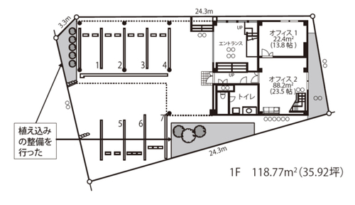
弊社では、都内のゴミ収集所近くの2階建ての事務所を買い取って、リフォームを施してから高く売却したことがあります。このときは、建物の内装、外装のリノベーションに500万円ほどの費用をかけましたが、もちろん十分に元を取る効果を上げることができました。
「徹底的な清掃」「植え込みの整備」で物件価値アップ
この物件が、高く売れたポイントは、清潔感です。ゴミ収集所が嫌われるのは、実際はどうかはともかくとして、そこに不潔感があるからです。ですから、それを打ち消すような清潔感が出るようにリノベーションを実施しました。
まず、建物の敷地の周囲の植え込みを徹底的にきれいにしました。花を植えて毎日水をやり、通行人から見ても憩いの空間になるように演出しました。
その程度で、ゴミ収集所の嫌悪感がなくなるのかと疑問に思う方もいるかもしれません。しかし、最近のゴミ収集所は、本当に不潔なわけではありません。ゴミの管理も臭いの管理もしっかりとしていて、できるだけ近隣に迷惑がかからないように最大限の配慮をしています。
それでも、ゴミ収集所があるというだけで、何となく嫌な気持ちになるのが人間というものです。衛生的にはまったく問題がないとわかっていても、床に落ちたものは食べたくないですし、築1年の中古マンションのほうが新築よりコストパフォーマンスが高いとわかっていても、新築を選びたくなるものです。あくまでも感覚や感情が問題なのです。
ですから、徹底的な清掃と植え込みの整備、そして新築同様に見えるリノベーションによって、物件のグレードは飛躍的にアップします。結果的に、とあるメーカーが事務所として相場以上の価格で買ってくれました。
