今回は、広大地判定・実力テストとして、八王子市・東村山市の事例を見ていきます。※本連載は、株式会社 東京アプレイザルの代表取締役・芳賀則人氏の編著書『実例でわかる!広大地評価 制度理解と適用判断』(清文社)の中から一部を抜粋し、土地評価の鍵となる、広大地に該当するか否かをクイズ形式で紹介します。

次の設問のうち、広大地に該当するものには○を、該当しないものには×を記してください。なお、以下の対象不動産の地形は、前提として、整形地を想定しています。

 

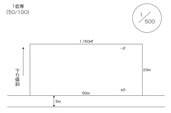
<問25> 

◆所在地 東京都八王子
◆街路・画地 幅員5m 道路に間口50m 、奥行き23m
◆用途地域 第一種低層住居専用地域
◆建ぺい率・容積率 50%・100%
◆面積 11,500㎡
◆利用状況 駐車場
◆備考 敷地の一番奥は道路面からみて2m 程低くなっているが、図面上
は路地上敷地で区画割りが可能と考えられる。

 

 

 

 

 

 

 

 

 

 

 

 

 

 
 

 

 

 

 
 
 

 

 

 

 

 

<問26>

◆所在地 東京都東村山市
◆街路・画地 幅員5m 道路に間口50m 、奥行き100m
◆用途地域 準工業地域
◆建ぺい率・容積率 60%・200%
◆面積 5,000㎡
◆利用状況 テニスコートと駐車場1,000㎡を併設
◆駅距離 1.5km(徒歩約18 分)

 

 

 

 

 

 

 

 

 

 

 

 

 

実例でわかる! 広大地評価  制度理解と適用判断

実例でわかる! 広大地評価  制度理解と適用判断

芳賀 則人

清文社

1,500件超の実績から、広大地評価の勘所がわかる! 相続税評価で大きな減額が可能となる「広大地」は、判断に迷うことが多く、トラブルへの発展も珍しくない。 本書は、鑑定士として1,500事例の広大地評価をサポートしてきた…

カインドネスシリーズを展開するハウスリンクホームの「資料請求」詳細はこちらです
川柳コンテストの詳細はコチラです アパート経営オンラインはこちらです。 富裕層のためのセミナー情報、詳細はこちらです 富裕層のための会員組織「カメハメハ倶楽部」の詳細はこちらです オリックス銀行が展開する不動産投資情報サイト「manabu不動産投資」はこちらです 石福金属工業のお知らせ エンパワー2月5日セミナーへの誘導です 不動産小口化商品の情報サイト「不動産小口化商品ナビ」はこちらです 特設サイト「社長・院長のためのDXナビ」はこちらです 一人でも多くの読者に学びの場を提供する情報サイト「話題の本.com」はこちらです THE GOLD ONLINEへの広告掲載について、詳細はこちらです

人気記事ランキング

  • デイリー
  • 週間
  • 月間

メルマガ会員登録者の
ご案内

メルマガ会員限定記事をお読みいただける他、新着記事の一覧をメールで配信。カメハメハ倶楽部主催の各種セミナー案内等、知的武装をし、行動するための情報を厳選してお届けします。

メルマガ登録
会員向けセミナーの一覧