デベロッパーのウェブサイトも情報源のひとつ
お洒落な外観やこだわりの内装が特徴的なだけでなく、普通のマンションよりもセキュリティ設備が良いなどといった付加価値も高いデザイナーズマンション。それだけでも十分資産価値のある物件ですが、そこに「東京」「駅近」「ワンルーム」という条件がそろえば、さらにその価値はアップしていきます。
たとえば建築から30年経っても、変わらず満室を維持できるような物件の選び方、そしてその運用方法を紹介いたします。投資に最適な東京の駅近ワンルームデザイナーズマンション。実際に物件を探してみましょう。
マンションの物件を探す手段としては、おもに「インターネット」「広告・チラシ」があります。手軽に物件情報が得られるのは、インターネットです。最近は、売買を手助けするポータルサイトによる売買物件の検索サイトが多くあります。
こうしたサイトでは、「エリア」「築年数」「価格帯」「部屋数」などの条件を絞って物件を探すことができます。「東京」「駅近」「ワンルーム」という条件を満たす物件を簡単に見つけることができるでしょう。
そして、物件情報の中に外観写真を掲載しているケースが多いので、「デザイナーズ」かどうかの目安もおおよそつけることができます。検討する物件が多ければ多いほど良い物件が見つかる可能性は高くなります。物件情報が重なっていることもありますが、複数の検索サイトを見て多くの物件情報にあたりましょう。
また、インターネットには売買を手助けするポータルサイトだけでなく、マンションを開発するデベロッパーのウェブサイトもあります。こうしたサイトには、ポータルサイトには載っていない情報が載っているケースもあります。
クオリティの高い物件情報は新聞広告で
一般的に、新聞広告に載っている新築物件はクオリティの高いものである可能性があります。図書館などに主要新聞の縮刷版がありますから、これで過去1~2カ月の広告をチェックすると効率的です。
また、新聞に広告を載せるときには広告主に対する審査があります。広告を載せているのは、基本的に信頼できる不動産販売会社やデベロッパーだと思って間違いないと思います。新聞チラシは物件の情報が自分の住んでいる近くのエリアに限定されますが、新築物件の情報がいち早く得られることがあります。東京周辺に住んでいる人は要チェックです。
「入居者にとって魅力的か」をチェックする
条件が合って気になる物件が見つかったら、不動産会社、デベロッパーに連絡を取り、現地の見学を手配してもらいましょう。物件は自分の目で確かめることが大切です。
ポイントは、「入居者にとって魅力的な物件かどうか」。外観やエントランスは、物件に対する入居者の印象を大きく左右します。外観やエントランスは魅力的でしょうか。また、セキュリティはどうなっているでしょう。エントランスがオートロックシステムになっているか、エントランスや自転車置き場などに防犯カメラがあるかなどをチェックします。もちろん、室内も重要です。メインルームは窮屈な感じがしませんか。清潔感はありますか。収納スペースはどうなっているでしょう。
その他、チェックポイントはいくつもあります。公共施設や金融機関が充実しているか、夜でも安心して歩けるかなど、周囲の環境も入居者にとっては大切です。
投資用マンション物件チェックリスト
物件を判断するにあたってチェックしたいポイントをリストにしましたので、参考にしてください。17あるポイントのうち12以上の項目にチェックがつく物件は、検討に値する物件。11以下の場合は、パスしたほうがいいでしょう。
□ デザイナーズマンションである
□ 東京の人口増エリアにある
□ 新築である
□ 駅から徒歩10分以内にある
□ ワンルームマンション(1K)である
□ 外観が印象的である
□ エントランスが印象的である
□ エントランスの開閉がオートロックシステムである
□ 宅配ボックスがある
□ 玄関キーが複製しにくいディンプルキーである
□ エントランスや自転車置き場などに防犯カメラがある
□ 室内に清潔感がある
□ メインルームに適度な広さがある
□ メインルームに収納スペースがある
□ 公共施設、金融機関、医療機関が充実している
□ 夜間でも駅から安心して歩ける
□ スーパー、コンビニが徒歩圏内にある
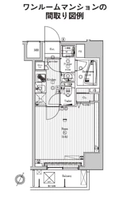
物件情報の基本中の基本、間取り図の見方を覚える
物件情報を見るときに、必ずチェックするのが間取り図です。間取り図の見方を説明しておきましょう。

まず確認したいのは、方位です。間取り図には方位マークが入っていますので、部屋がどの方角に向いているかをチェックします。ワンルームの物件の場合、バルコニーに面している壁に一番大きな窓がついていることが多くなっています。バルコニーが南側を向いていれば、日当たりのいい部屋ということになります。
次に、メインの部屋の広さを見ましょう。これは「畳(j)」の単位で書かれていれば広さの見当がつくと思います。「平米(㎡)」で広さが書かれていれば、平米数を1.62で割ってください。これで畳数が出ます。ワンルームだと6畳は欲しいところ。6畳未満だと狭い印象になります。
また、収納スペースの有無が部屋の広さに関係します。間取り図に「収納」と書かれているところが収納スペース。クローゼットは「クローゼット」または「CL」「Clo.」などと略して書かれています。入居者も必ずチェックするところですから、クローゼットなどの収納スペースの有無、広さを確認しましょう。
バスルームの数字はバス空間の広さ
間取り図はすべて漢字で書かれているものもありますが、クローゼットを「CL」とするように、英語の略語がよく使われます。「PS」はパイプスペース、「MB」はメーターボックス、「UB」はユニットバスです。
バスルームなどに4ケタの数字が書かれていることがありますが、これはバス空間の広さを数値で表したもの。「浴室(1114)」とあれば、1.1×1.4メートルの広さがあることになります。
その他、冷蔵庫スペース、洗濯機スペースの位置などを確認します。キッチン周りに「Ref.」または×マークがついているところが冷蔵庫スペース。バスルーム近くやパウダールームに「W.」がついているのが洗濯機スペースです。

【参考文献】
「金持ち父さん 貧乏父さん」 ロバート・キヨサキ、シャロン・レクター /白根美保子 訳(筑摩書房)
「中古ワンルームマンションで収益を上げる!」 重吉 勉(かんき出版)
「東京の中古ワンルームを3戸持ちなさい」 重吉 勉(かんき出版)
「プロが教えるはじめてのマンション投資」 中見文男(河出書房新社)
「ワンルームマンション投資法」 野中清志(週刊住宅新聞社)
