地域のニーズを調べて「用途変更」を実施
専用住宅、アパートやマンションなどの建物は、生物(なまもの)です。建ててからある程度の年数が経ってしまうと、老朽化したり、陳腐化したりして、価値がなくなります。
そのため、物件をいつまでも収益物件として、あるいは商品としてフレッシュに保とうと考えるのならば、定期的に個性的なリフォームが必要になります。
ご自分の住む自宅であれば、30年間一度もリフォームなしでも、不便でなければかまわないのですが、他人に使ってもらうのであればリフォームは必須です。現在は、不動産オーナーさんのなかに、これをやらない方が年々増えています。その理由は、お金がないからです。
しかし、卵が先か鶏が先かという議論になってしまいますが、筆者の考えでは、リフォームをしないからお金が入らないのです。先行投資をしないところに、利益はありません。投資を惜しんで収入を減らすのは、典型的な悪循環です。
弊社が購入した5階建ての商業ビルの4階のワンフロアは、2年近くテナントが入らず、空室状態が続いていました。このオフィスはそれまで月額120万円の賃料を設定していたのですが、ここ2年間の収入はゼロです。機会損失は3000万円近くに上っていました。
元の所有者が、このビルの収益性を見限って、あきらめて安く売りに出したところを、弊社が目をつけて購入したのです。というのも、地域事情を克明に調査したところ、このビルにはまだまだ可能性があると考えたからです。
ビルを購入した弊社は、まず当たりをつけた業者に相談を持ちかけるところからはじめました。そして、弊社が大規模なリフォームを行うことを条件に、その業者と複数年の賃貸契約を結ぶことができたのです。
その業者とはレンタルオフィス業者でした。この地域では、ワンフロア全てを使うような大規模なオフィスの需要は低かったのですが、個人規模の企業が多く、レンタルオフィスであればニーズがあることが弊社の調査によってわかったからです。
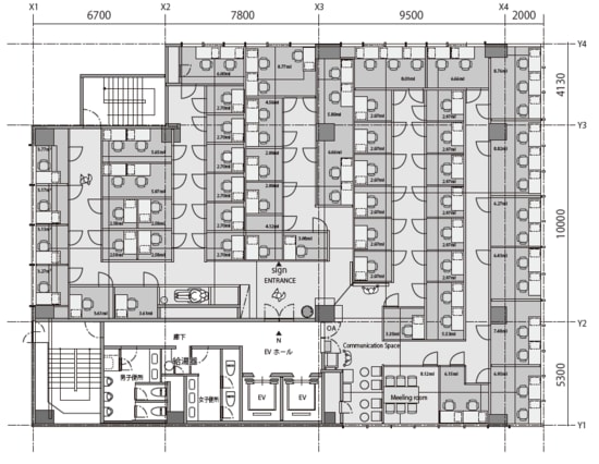
こうして、3000万円近くのリノベーション費用をかけて、下記の図表のように、数多くの小部屋が並んだシェアオフィスに改装しました。もちろん、レイアウトなどは賃貸してくれるレンタルオフィス業者と相談のうえで行いました。その結果、もともとは月額120万円だったオフィスを、月額170万円の賃料で貸せることになったのです。
[図表]地域ニーズに合わせ、シェアオフィスに改装した例

ちなみに、月額120万円で貸した場合は年間1440万円の収入ですが、月額170万円のケースでは2040万円の年収になります。リノベーションには約3000万円かかりましたが、1年半で投資回収できる計算になります。
不動産の売却は「先行投資」が重要
弊社は、実際にはこれを収益物件として1年後に売却しました。現在、収益物件が売れるかどうかは、エリアによりますが、利回りで10%あるかどうかがボーダーラインになっています。
利回り10%と値段設定した場合に、月額120万円の賃料の場合は1億4400万円という物件価格になるでしょう。しかし、同じ利回り10%でも、月額170万円の賃料だと、2億400万円という価格になります。その差額は6000万円にもなります。
弊社は、3000万円のリノベーション費用をかけましたが、実際には6000万円も高く売ることができたので、ざっと計算して約3000万円の利益を出すことができました。
不動産の売却にあたっては、先行投資が重要だというのはこの事例からもわかります。筆者の知人は「投資なくして利益なし」とよく言っていました。リフォームやリノベーションが、建物の価値を上げ、高く売却することができる方法であることがご理解いただけたでしょうか。
「遵法性」が確保されているリフォーム会社を選ぶ
なお、リフォームやリノベーションをする際には、安かろう悪かろうのリフォーム会社に依頼するのではなく、きちんと建築士のいるリフォーム会社を選んでください。なぜならば、リフォームも建築の一種ですから、遵法性(コンプライアンス)が確保されているかどうかが大切になるからです。
特に、間取り変更などを行う際には、避難階段や採光など、建築基準法に違反がないかどうかの確認が必要です。
また、見た目のデザインという点でも、プロフェッショナルなデザイナーのアドバイスが有効です。建築士やデザイナーのいるリフォーム会社に頼むと、それなりに費用がかかりますが、かかった費用以上のリターンが見込めるようになります。
弊社のビジネスでいえば、瑕疵があるために安く売られている物件を取得し、リフォームによってよみがえらせて、早期に賃貸して収益性を上げて市場価値を高め、早期に売却して投資金額を回収するという出口戦略が成功した事例です。
