自社で仕入れ、査定、開発を行う「独自の事業」
2014年にロサンゼルスに進出した株式会社三栄建築設計は、これまで、さまざまな実績をあげてきた。それらは「すべて同社独自の事業です」と同社ロサンゼルス支社の近藤晃弘氏はいう。
「弊社ロサンゼルス支店には私だけではなく、日米不動産歴25年以上の責任者をはじめ、私も含めた在米歴10~20年以上の現地に精通した仕入れ部隊が揃っています。それぞれ英語が堪能、かつ土地勘のある現地採用のバイリンガルのスタッフが、常日頃から情報を入手し、日常ベースで案件を精査、遂行しています」
通常、日本の大手不動産業者がアメリカに進出をする際、現地の開発業者と手を組み、資本投資をして開発事業を行う。しかしその場合、自社で仕入れや精査などをしていないため、次の案件へつながる知識とネットワークが構築されにくく、現地業者任せになってしまう場合が多い。よって、いつまでたっても自社開発は難しく、投資してる金額に見合った知識やスキルが身につかず、チームが育たない、つまり次の案件に繋がりにくいというスパイラルに陥る。
しかし、同社の場合は自社で地元の業者や市役所などとやりとりし、日常ベースで出入りしているため、入ってくる情報の量と質が高いという。
「ひとつの例として、イングルウッドの大規模アパート開発案件の仕入れの際は、イングルウッドのスタジアム建設決定や新駅の開設の情報だけではなく、私たちのプロジェクトの敷地から徒歩圏内にある病院をある開発業者が購入し、分譲戸建の許認可を計画している情報を得ていました。やがてそのプロジェクトは200棟を超える分譲住宅が建設される発表があり、3年後の現在は一部のフレーミングが終わった段階で、先売りで4ベッドの物件が約$959,990から売り出されています。
当時は病院が建っている状態でしたが、その段階で私たちは、プロジェクトに追い風になり、近隣の時価上昇につながる事象を察知していたのです。この他にも、いくつか周辺で起こる事象を総合的に判断して、質の高い、つまり他の業者も欲しがるような、プロジェクト案件の仕入れに努めています」(近藤氏)
地元に密着し、自社開発だからこそ構築できるネットワーク。そしてその情報を元に、何重にも伏線をはりめぐらせるからこそ行うことのできるリスク管理。これこそが、同社がアメリカ進出から成長を続けることができた理由なのだ。
プール跡地にタウンハウス+オフィスを建築
同社ロサンゼルス支店の近藤晃弘氏に、これまで携わったプロジェクトで印象深いものや、現在進行中のプロジェクトについて聞いていこう
【プロジェクト事例1】
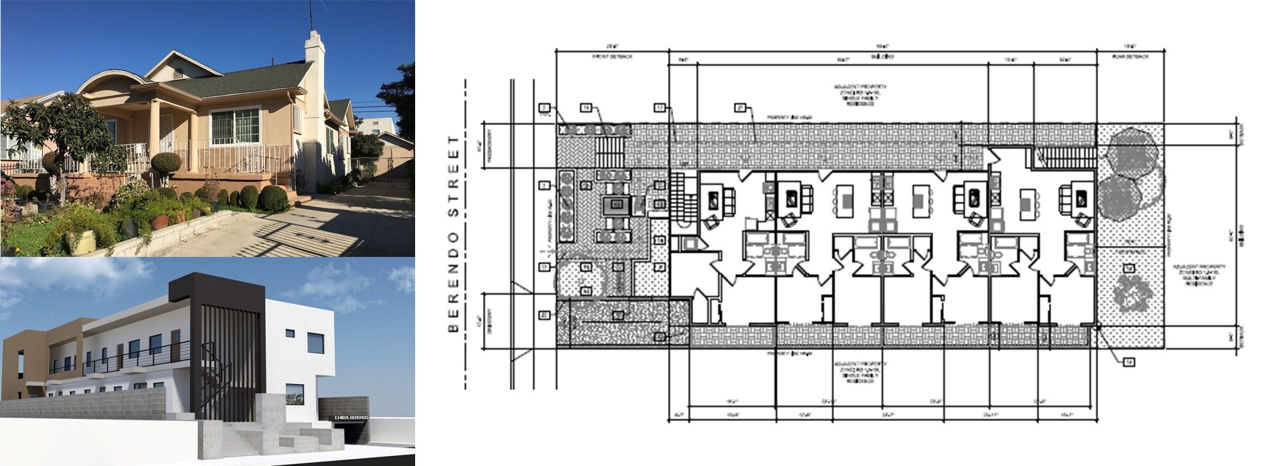
「『Meldia Skye タウンハウス開発プロジェクト』は、2015年当時スイミングプール跡地だった区画を購入し、その土地に8戸のタウンハウスと約300平米のオフィスビルを一棟建築しました」(近藤氏)
プロジェクトの地は、ロサンゼルス空港から車で南に20分ほど走ったトーランス市で、人口15万人ほどの中規模都市。沿岸に寒流が流れていることもあり、年間通して程よく涼しく、また治安も良いことから、ホンダやトヨタ(北米研究開発拠点であるトヨタテクニカルセンターUSA)、伊藤忠、ANA、キリン等の日系企業が集中的に営業所を開設していることで知られている(住民の1割は、日本人、または日系人)。
「住戸タイプは、約100平米の2ベッドルーム+2.5バスルーム+屋上デッキと、充実した造りです。このエリアの中間世帯収入は約$76,866と、ロサンゼルス地区全体の平均より上の数値が出ていました。また、教育レベルは、現地の小、中学校ともに、全米と比較しても非常に高水準、中学生までを対象とした全日制の日本人学校、補習校もエリア内にあるなど、移住者にも便利で人気エリアです。1戸$601,000~$650,000でしたが、完成後、すぐに完売しました」(近藤氏)
映画の街・ハリウッドで進む、期待のプロジェクト
【プロジェクト事例2】
エンターテイメントビジネスの象徴である「ハリウッド」が位置するのは、ロサンゼルスの中心、ダウンタウンの北西。20世紀初頭に、ロサンゼルス市と合併した。雑誌や映画で一度は目にしたことがある「ハリウッドサイン」、200人以上のスターの手形・足型が残されている「チャイニーズ・シアター」、アカデミー賞の授賞式会場として知られている「ドルビーシアター」などの観光スポットが点在し、映画関連のオフィスや観光客をターゲットにしたホテルが集積する。
「ハリウッドはこの10年で大きく変わり、多くの若年層を惹きつけてきました。街中には新しいレストランやナイトクラブが誕生し、非常に活気づいています」(近藤氏)
このようなハリウッドだが、住民の約85%は賃貸住宅に住む。「Capitol Records」や「Paramount Pictures」、「Disney and Warner Bros」など、世界的企業の拠点がハリウッドやその周辺にあり、またダウンタウンやウエストロサンゼルス、サンフェルナンドなど、ロサンゼルスの主要なビジネス街へのアクセスも比較的良好と、賃貸需要が高いエリアなのだ。
「多くの住民が賃貸マーケットのターゲットになり、さらに若年層の増加はこれからも続くと予想されています。賃貸物件のオーナーにとって、いい状況だといえるでしょう」(近藤氏)
そして、ここハリウッドでいくつかのプロジェクトが進行中だという。そのひとつを見ていこう。『イーストハリウッドアパートメントプロジェクト NO.2』は、ハリウッド中心部の東に位置するイーストハリウッドエリア、州道2号線(サンタモニカ・ブルバード)から1本入った住宅地で進む。近隣には「CHA Hollywood Presbyterian Medical Center」や「Planned Parenthood - Hollywood Health Center」といった医療機関があり、「Los Angeles City College」まで徒歩7分、「Vermont / Santa Monica Station」まで徒歩5分と、生活利便性に優れた立地だ。
「現状、戸建1戸と裏庭のあるスペースに、新築8戸のアパートをつくる計画です。住戸タイプは、賃貸しやすい2ベッドルーム/2バスルームスタイルで、8つの駐車スペースも確保します。駅、バス停、レストラン、スーパーなどが徒歩圏内と、好立地なのもポイントです。完成は2021年と先ですが、周辺の同程度の物件では、年間の家賃収入は$235,800の見込みとなっています」(近藤氏)
全116戸の大規模賃貸アパートプロジェクト
【プロジェクト事例3】
もうひとつ、大きなプロジェクトを紹介しよう。『イングルウッドプロジェクト』(仮称)は地下3階、地上5階建、全116戸の新築賃貸アパートメントの開発事業だ。ロサンゼルスのほぼ中央というロケーションで、ビバリーヒルズ、サンタモニカ、ダウンタウンなどへも車で30分圏内と周辺のエリアへのアクセスも良い。
「このプロジェクトは、2つの総合病院、各学校が近く、ロサンゼルス空港、405号線高速道路、イングルウッド市役所までのアクセスも良いという、恵まれたロケーションに位置します。さらに2020年6月には、ロサンゼルス空港とイングルウッドの北、クレンショー地区に伸びるLAX-Crenshaw線の新駅が、徒歩10分ほどのところに完成し、さらに利便性は向上します。間取りは貸し出しやすい、1ベッドルームと2ベッドルームで、175台の地下駐車スペースやプール、ジム、クラブラウンジ完備します。周辺の家賃相場は、1ベッドルームで$2,150、2ベッドルームで$2,850ほどですね」
さらに車で5分ほどのところに巨大複合施設の開発が進行中で、2021年完成予定だという。アパートの竣工も2021年だが、完成後の賃貸需要は非常に高いと見込んでいる。

